||
1 前篇博文“专家与常识:武王墩楚墓的用尺存疑 ”说了,发掘简报中数据较少,如四个半页面介绍棺椁结构,仅有三个数据:中室第一层盖板厚约0.5米、椁墙间木塞高约2.4米以及包裹木楔的牛皮长约5厘米。不过,现在刊物的制图和印刷质量颇好,简报中图件想来准确,可以判断葬器适用周尺21.5 cm。
方玲, 李凤翔, 柴政良, 路国权, 张闻捷, 张治国.
安徽淮南市武王墩战国晚期一号墓. 考古, 2025 (9): 25-46+2


图中有5米的标尺,可以判断厚约0.5米的中室第一层盖板长二十五尺(5.375 m),图上偏差5 cm 之内,故而椁室通长九十二尺(19.78 m)。垫木和枕木高三尺,椁室高二十尺,合计二十三尺(4.945 m),与图上 5米的标尺相符。图件可信。
南北椁室含侧墙的宽度为十四尺,椁室之间的隔墙加两侧木塞宽度为三尺;中室含内墙宽十四尺,与南室、北室之间相隔五尺;椁室南北两端的外墙含塞木宽三尺。南北向的尺寸分割是:3+14+3+14+5+14+5+14+3+14+3=92。
南北椁室的内墙高十二尺,与顶板搭接,故而顶板比二尺略厚( 2.2 尺?),上层底板合枕木厚二尺,而下层底板和盖板都是厚二尺。制图精度颇高,只是个别位置稍有偏差——与线宽相当,不必在意。墙板的木料宽度想来设计到寸,不能从图上测算。

上述规整的尺寸想来能够说明葬器以周尺21.5 cm 设计和制作,其他部位也就不再赘述,只是需要声明:测算完全基于简报中图片,其可靠性尚待考古测量数据的确认。
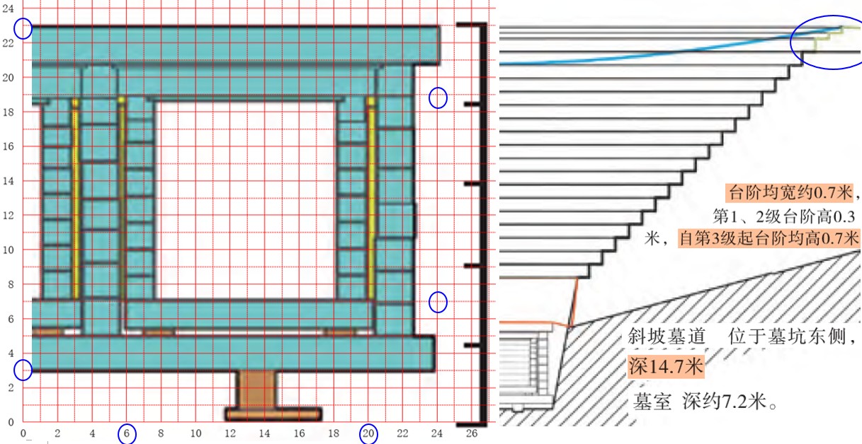
2 墓穴数据多精度较低。简报称东侧的墓道出口深14.7 米,但没有给出墓穴深度。新闻宣传有20米和19米两个数据,想来后者从原地面计算,而前者包含了上面3级熟土台阶的高度。故而墓道出口距墓底19 - 14.7 = 4.3 m 二十尺。如此数据当然没有精度可言;不过,图上可见出口略低于高二十尺的椁室顶面,其差距正好是椁底枕木的高度,即使实测数据略有偏离,设计值二十尺总是可信。下图是南北向的剖面图。 
3 总计21级台阶,3级在原地表以上;简报称台阶皆宽0.7 米,前两级高0.3米,第三级起皆高0.7 米,而网上有专家说台阶为秦尺23.1 cm的三尺。不过,“朱华东. 战国楚贵族墓的台阶. 大众考古, 2024(11):31-36”称墓坑深19米,生土台阶高、宽皆0.6 米。数据是简报的第一作者方玲女士提供,但与简报不同。
简报说台阶下方的墓室深约7.2 米,台阶平均三秦尺69.3 cm 高,则墓穴深度7.2+0.693*18=19.67 m,计入上方3级熟土台阶则达到20.97 m,与19米和20米的差异已经超过了数据精度对应的最大误差0.5 m。
若依墓穴深19米,则18级台阶平均高度为65.6 cm;若依全深20米,扣除熟土台阶的1.3米后,下方台阶平均高度只有64.4 cm。总而言之,台阶高度或许有些变化,而平均值可能为周尺21.5 cm 的三尺(64.5 cm)。
4 田野考古似乎对数据缺少足够的重视,简报竟然没有给出墓坑深度以及葬器长宽等特征参数,也是奇怪呢。某些专家见到武王墩楚墓枕木下三秦尺的竹尺,就认为楚国已使用秦尺,进而寻找个别数据如墓室上口边长 约 23.1 米予以佐证,并没有价值。
补充:博文贴出后48 小时内仍可以修改,故而稍作补充而不另作文。
方玲,柴政良,李凤翔,张闻捷,路国权,张治国
安徽淮南武王墩一号墓考古新发现. 文物, 2025(5): 55-60+2+97
此前没有仔细阅读上列文献,实在是不应该;有” 墓坑开口为方形,边长51、总深约20米”和椁室的俯视照片,可见局部的埋藏变形损坏,如北 I 室左上角、东室中隔墙等。

笔者不能确认摄影变形;不过,前文所述中室内椁的宽度十四尺,从照片可确认其长度为二十尺;外椁长宽为二十四尺和十八尺,也是没有疑问。两者之间的空隙有木塞。北II 室与外椁相隔三尺,而与内椁相隔五尺前文已基于线条图确定。武王墩楚墓的葬器使用周尺21.5 cm 设计、制作似可肯定,即楚国并没有改用秦尺、没有向秦国屈服。这是非常重要的历史。

此外,北椁室东侧外墙保持完好,两层木料的宽度肯定大于周尺21.5 cm 的三尺三寸,也就不会等于秦尺23.1 cm的三尺六分六厘(说明参见前篇博文)。椁室下方出土长69.4 cm 的竹尺(三秦尺),想来与武王墩楚墓的营建无关;至于将秦国尺度埋入墓底有否特别意义,笔者不持主张。


Archiver|手机版|科学网 ( 京ICP备07017567号-12 )
GMT+8, 2026-4-23 06:43
Powered by ScienceNet.cn
Copyright © 2007- 中国科学报社